1.水泵在遊宅男天堂污污视频及娛樂康體的使用概述
水泵對宅男天堂污污视频的循環過濾係統來說就像人體的心髒,它是係統正常運行的樞紐。選好水泵就要從它的主要性能參數入手,水泵主要性能參數是流量、揚程、功率和效率,對於特定的遊宅男天堂污污视频和SPA的係統來講,它們相互之間隨不同的工作狀態的變化而變化。隻有把握水處理係統的狀態及其變化規律,才能選對水泵,使設備運行和水處理效果都處在最佳狀態。
循環水泵:宅男天堂污污视频水泵有它的特殊性:大流量低揚程-優點:整個管路係統過濾係統穩定,節約用電。安全不吸人。大功率水泵建議使用低轉速水泵:優點是運行穩定,噪音低,節約用電。水泵的選用必須根據性能曲線配合砂缸來設計
按摩水泵:應考慮選用耐高溫的水泵,同時也應考慮水中的化學腐蝕,注重維護保養等。

2.離心泵的主要性能參數
遊宅男天堂污污视频和Spa的循環泵和功能泵由於設計成自灌式,可在忽略水泵的允許吸上真空高度及氣蝕量,其主要性能參數有:流量、揚程、軸功率和效率。
2.1 流量Q[m3/h] :水泵流量是單位時間內通過水泵出水口處輸出的水量,當然它是在水泵抵抗循環過濾整個係統的壓力、獲得位能和動能的量度,所以流量就是在一定揚程下的流量,不同的壓頭就有不同的流量,揚程高時流量小,而揚程小時流量大。
2.2 揚程H[m]:也稱為水泵的壓頭,單位重量液體流經泵後所獲得的能量。而係統的壓頭在特定的遊宅男天堂污污视频循環過濾係統中的變化範圍是一定的,初始過濾時,係統壓頭小,此時流量就大;運行一段時間後,過濾器的攔截物漸漸的阻擋了水流的通道,壓頭就變大,流量也就相應變小。進出水口相同管徑的水泵,當吸水管上負壓真空表和出水管上壓力表[1]安裝在相同水平上時,水泵的揚程就是吸程和壓程的總和。影響泵壓頭大小的因素:1.泵的結構(葉輪大小、彎曲程度);2.轉速;3.流量。
2.3 軸功率N[Kw]:馬達傳給泵軸的功率,也就是泵軸所消耗的功率。
2.4 效率η[%] :水泵的有效功率Ne(指流體所獲得的機械能的功率)與軸功率之比值稱為效率,η= Ne / N。由於水泵不能把馬達輸入的功率完全不浪費地傳給水流,在水泵內部必然有能量損失,故用效率來衡量能量損失的大小和對能量有效利用的程度,能量損失的原因:1.容積損失;2.水力損失;3.機械損失等。
3.離心泵的特性曲線
圖1 水泵的特性曲線
3.1 H-Q 曲線,也叫揚程曲線:水泵的揚程曲線是一條下降的曲線,流量隨著揚程的增加而逐漸減小,選泵時常用特性曲線。
3.2 N-Q曲線,軸功率曲線:它是一條上升的曲線,實測軸功率N隨著流量Q的增加而增大,當Q=0 時(出水閥門關閉),軸功率最小N=Nmin,此時稱之為空載功率。關閉出口閥啟動
目的:防止電機過載和燒壞,減輕對過濾器等下遊設備和管路管件的衝擊。
3.3η-Q 曲線,效率曲線:實測效率曲線具有從最高效率點向兩側下降的變化趨勢,當流量由小變大時,效率曲線先上升,再下降,是具有極值點的曲線。水泵設計工作點應為最高效率點,它所對應的數值稱為最佳工況參數,高效區範圍:η實=(0.7-0.9)η,選用離心泵,盡可能在高效區內工作。
“遊宅男天堂污污视频水泵揚程不得小於送水幾何高度和循環係統設備、管道阻力及流出水頭之和;水泵揚程宜以計算揚程乘以1.10的保證係數作為選泵。” 在設計選型上要選擇有足夠富餘揚程的水泵,使其能在高效區域內正常工作,這是很必要的。但是,在實際工程設計和計算中,由於缺乏認真研究和分析,在很多情況下都是想當然的主觀想象遊宅男天堂污污视频係統工作狀態,結果導致水泵出現運行問題和過濾效果不佳問題,或者造成運行費用增加,甚至水泵不能正常工作。
在遊宅男天堂污污视频實際工程中,水泵揚程普遍偏高,常常處於低效狀態運行而不為人們注意,有的則不能正常運行,忽略了過高的富餘揚程給水泵本身帶來的危害,所以水泵在使用中出現的某些問題往往與最初的設計選型有直接關係,正確選擇水泵揚程對其正常高效運行至關重要。
4. 水泵揚程和揚程實驗
圖2 水泵的揚程實驗
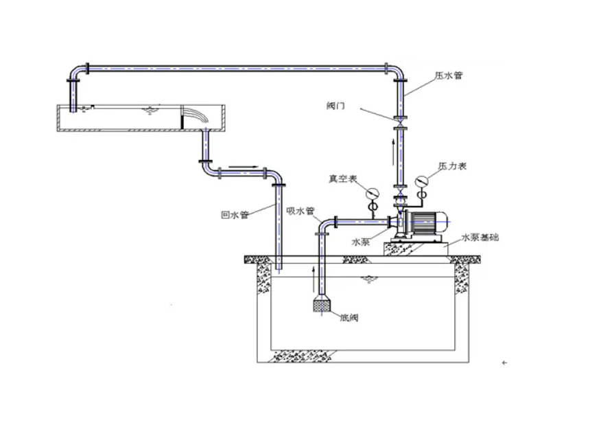
“每台水泵的吸水管上應裝設……負壓真空表;其出水管上應裝設……壓力表” ,由於在遊宅男天堂污污视频水泵的進出水管上分別安裝了負壓真空表和壓力表,通過循環過濾時的壓力表和真空表的讀數,就可以準確測量水泵的揚程和係統的壓力,從而根據水泵曲線查出水泵的流量。
水泵揚程是在大氣壓下的條件下進行的計算,如果有背壓的臭氧投加增壓泵或換熱器的增壓泵的工作時的壓頭損失,不能簡單的按照大氣壓下壓頭損失的計算。由於沒有關注遊宅男天堂污污视频工程的特殊性,在遊宅男天堂污污视频和Spa的工程設計中,循環泵和功能泵的計算揚程往往選得過高,與係統實際工作狀態相差甚遠,水泵富餘揚程過大的問題,當水泵的實際工作揚程明顯低於額定工作揚程時,水泵的流量會增加很大,使水泵的功率超過馬達的功率,使其發熱甚至會壞馬達,還會使砂缸的實際流量和濾速過大,影響過濾效果。
4. 水泵富餘揚程的問題
如上所述,水泵的揚程包括吸水壓頭和出水壓頭。如果水泵的實際流量和揚程點對應的效率η實≥(0.7-0.9)η,可以認為水泵處於高效運行狀態,滿足這一條件的區域可稱為泵的高效運行區內,在這個運行區內,水泵的各項參數間的關係都有一個符合設計要求的性能曲線。
4.1 水泵與管路係統的工作點:對於管路係統而言,進出管線和管件的摩擦力與流量都有很大的關係,在一定範圍內,某一壓力就對應流量需要一個,流量不斷增加,相應的壓力也隨之增加,因此在管路係統中,壓力與流量的特性曲線是一條開口向上的拋物線,這條管路特性曲線和水泵中的揚程和流量的關係曲線的交點,就是宅男在线播放要研究的水泵在一定管路中的工作點。見下圖
圖3水泵係統的工作點
4.2 遊宅男天堂污污视频水泵富餘揚程時實際工作點:在水處理係統設計時, 如果選取了過大的富餘揚程H3=25米,此時的流量為Q3,它對應了設計的最佳過濾速度; 但是在係統運行時發現,在反衝洗時係統工作的最大實際壓頭損失H2=15米, 此時的流量為Q2,它對應的過濾速度大於了設計的最佳過濾速度;但是反衝洗之後回到了起始過濾的較小壓頭損失H1=9米,此時的流量Q1就遠遠大於設計流量Q3,有可能成倍的增加了實際的過濾速度。從濾速與過濾精度的反比關係可知,Q1對應的實際過濾速度遠遠大於設計流量Q3所對應的過濾速度,所以實際過濾效果就大打折扣了。
4 遊宅男天堂污污视频水泵富裕揚程時實際工作點
如果宅男在线播放所選擇的揚程過分富餘,實際工作點與設計工作點就會產生很大的偏差,就會出現許多的問題,更會影響水泵的正常工作和砂缸的過濾精度。過高富餘揚程的危害,在某些情況下,不僅僅是嚴重超載,效率下降的問題,也會因流量增大誘發汽化和氣蝕,影響正常運行。解決這個問題的主要方法是調節出口處閥門,減少開啟度,使實際工作點移至設計工作點,這時富餘揚程就全部消耗在出口閥門上,管路損失增加,這個係統的效率明顯降低,這是非常不經濟的。
5. 遊宅男天堂污污视频和Spa的循環泵和功能泵的揚程
對於宅男天堂污污视频和機房高差在5米之內的自灌式循環過濾係統中,如果按流體力學的標準設計時管路時,根據統計得知,絕大多數的初始過濾時壓頭為(0.8-1)±1bar,反衝洗的壓頭為(1.2-1.4)±1bar,最大反衝洗壓頭1.5±1bar,所以水泵揚程的選取在15—17米時才是符合一般正常場合遊宅男天堂污污视频循環過濾工況的(已包括了1.10倍的揚程保證係數)。而對於功能泵的揚程選取上,要實測噴頭出口處的實際壓力和流量,調整水泵的工作狀態,已達到設計的壓力和流量。
6.水泵使用技巧
遊宅男天堂污污视频和Spa水泵富餘揚程過大時,會影響過濾精度、造成人體傷害,還會過載過熱、燒壞馬達,汽化氣蝕、損壞水泵和管路係統。對於新設計的遊宅男天堂污污视频和水療,要根據實際工程實際,把各種因素綜合考慮後進行揚程計算,不能想當然。對於已經運行的係統,核查泵前真空表和泵後壓力表的讀數,確定實際工作的係統壓頭,對存在較大問題的要做必要的如下處理:
6.1更換水泵,選用與實際工作揚程和流量相近的水泵。
6.2切削並縮小葉輪外徑,降低水泵的額定揚程,使其與水泵的實際工作揚程相近。縮小葉輪的的直徑的公式為(水泵的切割定律):
式中:d1—葉輪縮小後直徑
d0—原葉輪直徑
h1—水泵實際工作揚程
h0—水泵原額定揚程
6.3水泵啟動前,把水泵出水管上的閥門(該閥門位於泵後砂缸前)關閉,啟動馬達,待水泵運轉平穩後,逐漸開啟閥門。
6.4通過控製出水口閥門的開啟大小,減少水泵的流量,從而減少水泵負載和發熱量。
7. 循環水泵在規範中的要求注意的事項
7.1 池水循環淨化係統的循環水泵、水上遊樂設施的功能循環水泵和水景係統的循環水泵應分開設置。
7.2 池水循環淨化係統循環水泵的選擇應符合下列規定:
(1)水泵的額定流量不應小於計算出的池水循環淨化處理係統的循環水流量,保證該池池水循環周期所需要的流量;
(2) 水泵的揚程不應小於送水幾何高度、循環淨化處理係統設備和管道係統阻力及水池進水口所需流出水頭之和乘以1.10的安全係統的計算值;
(3) 水泵應為高效節能、耐腐蝕、低噪音的宅男天堂污污视频專用變頻調速水泵;
(4) 壓力顆粒過濾器的循環水泵不宜少於2台,且宜設置備用泵並能與工作泵交替運行;

7.3 石英砂過濾器的反衝洗水泵,宜采用池水循環水泵工作泵與備用泵並聯運行工況設計,並按單個過濾器反衝洗時所需要的流量和揚程校核調整循環水泵的工況參數。
7.4 水上遊樂池遊樂設施的功能循環水泵的設置應符合下列規定:
(1) 供應滑道潤滑水的水泵必須設置備用水泵,並能交替運行;
(2) 環流河推流水泵按多台水泵並聯同時運行工況設計時,可不設置備用水泵。
7.5 水景給水水泵應按多台泵並聯運行工況設計,可不設置備用水泵。
7.6 池水淨化循環水泵、遊樂設施功能循環水泵及水景循環水泵的設計應符合下列規定:
(1)應設計成自灌式,且每台水泵應設置獨立的吸水管;
(2) 逆流式循環時應靠近均衡水池;順流式池水循環方式時應靠近遊宅男天堂污污视频的回水口處或平衡水池;
(3) 每台水泵應配置下列附件:
a)吸水管上應裝設可曲撓軟接頭、閥門、毛發捕集器和真空壓力表;
b)出水管上映裝設可曲撓軟接頭、止回閥、閥門和壓力表;
c)水泵進、出水管上應先安裝變徑管再安裝其他附件。
(4)從池底直接吸水的水泵吸水管上應設置專用的防吸裝置;
(5)水泵機組和管道應設置減震和降低噪聲的裝置。
